Stålstomme288kvm Hall 3B
7d 7h
Avslutas: 08 oktober 2025 10:05
Ledande bud
0 kr (exkl. moms)
Du måste bekräfta att du har uppfattat auktionens utlämningstider och plats innan du kan lägga ditt bud.
Utlämning
Inom 7 dagar efter avslutad auktionAdress
BjuvFrakt möjlig
NejÖvrigt
Auktionsmäklare: roger.henriksson@budi.seKom ihåg att även om frakt är ej möjligt så har du möjlighet att hämta ut objektet själv, skicka ett ombud eller använda externa tjänster som t.ex. Tiptapp under den aktuella utlämningstiden.
-
Moms på bud
25%
Bud | Tid | Budgivare |
---|
Bud | Tid | Budgivare |
---|
Objektbeskrivning
Objekt-ID
5/113841Export allowed
NoMarknadsvärde
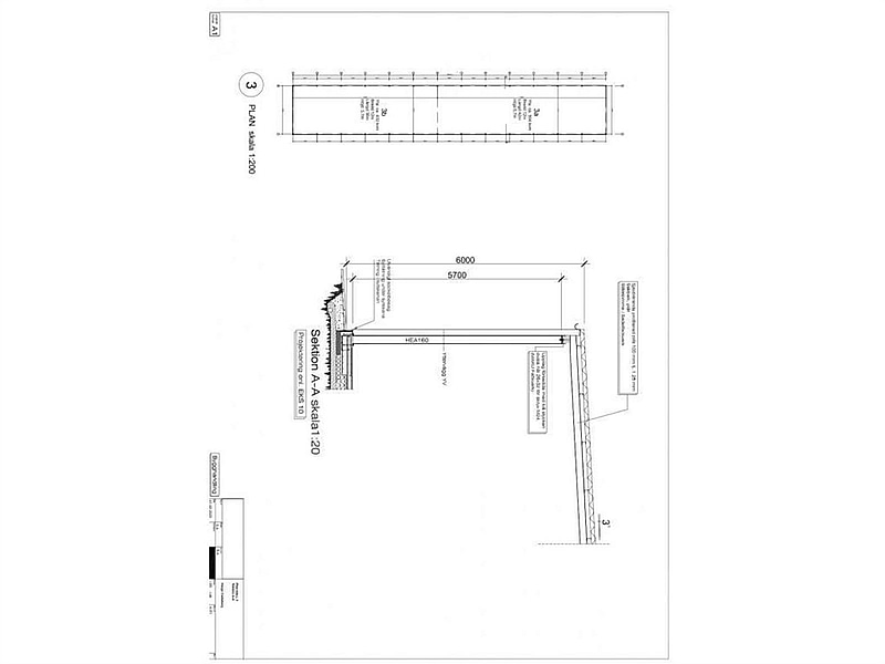
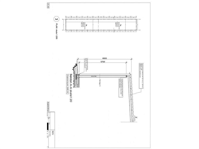
210 000 krMått & yta
Längd: 24m
Bredd: 12m
Höjd: 6.3m
Yta: cirka 288kvm
Ingår i paketet
10st pelare, cirka 6.3meter långa, extra grova(har tidigare burit en traversbalk)
4st takstolar, 0.29meter bredd, 12meter lång
1st takstol, 0.29meter bredd, 10 meter lång(ingår material till att förlänga den)
Z-profiler till tak
Övriga upplysningar
Säljes demonterad
Ingår takstolar, pelare och Z-profiler till tak
Ritningarna är cirka mått
Auktionsinformation
Auktionsavslut
08 oktober 2025 10:05Visning
Enligt ö.k. med roger.henriksson@budi.seUtlämning
Inom 7 dagar efter avslutad auktionAdress
BjuvFrakt möjlig
NejExport allowed
NoÖvrigt
Auktionsmäklare: roger.henriksson@budi.seSäljare
FöretagAnsvarig auktionsmäklare

Roger Henriksson
Vänersborg, Västra GötalandVanliga frågor och svar
En serviceavgift tillkommer på alla produkter som säljs via Budi. Avgiften läggs ovanpå det vinnande budet, och blir därmed en del av det totala belopp du som köpare betalar.
Varför finns serviceavgiften?
Serviceavgiften täcker våra kostnader för hantering, administration och den service vi erbjuder i samband med försäljningen. På så sätt kan vi säkerställa en trygg och smidig köpupplevelse.
Hur beräknas serviceavgiften?
Serviceavgiften sätts i relation till marknadsvärdet.
Ju högre värde ett objekt har, desto större blir både det juridiska och ekonomiska ansvar som följer med försäljningen.
Inom auktions- och mäklarbranschen är det praxis att avgifter bestäms procentuellt eller som en fast summa baserat på försäljningspris eller marknadsvärde. Högre värderad egendom belastas med en något högre avgift, vilket motsvarar den ökade komplexiteten, risken och det ansvar som hanteringen av mer värdefulla objekt medför.
Serviceavgiften är en fast summa och påverkas inte av själva budgivningen.
Tillkommer moms på serviceavgiften?
Ja, 25 % moms läggs alltid på serviceavgiften.
När och var kan jag se serviceavgiften?
Serviceavgiften visas när du är inloggad på vår hemsida. Vi visar alltid avgiften tydligt innan du lägger ditt bud - så att du vet exakt vad totalpriset blir.
Reservationspriset sätts av uppdragsgivaren (säljaren) och är det lägsta belopp som säljaren accepterar för produkten. Syftet är att säkerställa att varan inte säljs under ett i förväg bestämt värde.
Om du vinner en budgivning där reservationspriset inte har uppnåtts, kommer vi att kontakta dig för att höra om du är intresserad av att mötas på en högre nivå. Vi kan då föra en dialog med säljaren för din räkning för att se om det går att komma överens om ett pris som båda parter accepterar.
Har alla objekt ett reservationspris?
Nej, på Budi har de flesta objekt inget reservationspris. Det betyder att budgivningen är bindande från första budet och att objektet säljs till högsta bud när auktionen stänger. Om ett objekt har reservationspris framgår det i auktionsinformationen och du ser också om ditt bud har uppnått det eller inte.
Vad händer om reservationspriset inte uppnås?
Vi kontaktar dig som budgivare för att höra om du vill diskutera ett högre belopp, och för en dialog med säljaren för att se om en överenskommelse är möjlig.
Kan jag fortfarande köpa om jag vinner under reservationspriset?
Inte direkt. Ditt bud är inte automatiskt godkänt av säljaren, men vi försöker hitta en lösning om du är intresserad.
Ser jag reservationspriset i förväg?
Nej, reservationspriset är dolt under budgivningen. Det enda du ser är om ditt bud har uppnått det eller inte.
Varför finns reservationspris?
För att ge säljaren trygghet i att inte behöva sälja objektet under ett för lågt pris.
Alla bud på Budi är maxbud. Det innebär att du anger det högsta belopp du är beredd att betala för ett objekt.
Vår budmotor sköter sedan budgivningen åt dig automatiskt. Den höjer ditt bud i enlighet med de fördefinierade budstegen – alltid med minsta möjliga höjning – upp till ditt maxbud. På så sätt behöver du inte själv bevaka auktionen varje gång någon annan bjuder.
Bud som lagts automatiskt av budmotorn markeras med i historiken.
Kan jag ändra mitt maxbud?
För att höja maxbudet: Du kan när som helst höja ditt maxbud genom att skriva in ett nytt belopp. Systemet uppdaterar det direkt.
Sänka maxbudet: Du kan sänka ditt maxbud, men bara så länge ditt nya maxbud fortfarande ligger över det aktuella högsta budet i auktionen.
Måste jag alltid lägga bud manuellt?
Nej. När du har lagt ett maxbud sköter systemet automatiskt dina höjningar enligt budstegen, upp till ditt maxbelopp.
Ser andra mitt maxbud?
Nej. Ditt maxbud är dolt för övriga budgivare. De ser bara det aktuella ledande budet.
Vad händer om två lägger samma maxbud?
Den som la sitt maxbud först får fördelen och ligger kvar som ledande budgivare.
Kan jag ångra ett maxbud?
Du kan inte ta bort ett maxbud helt, men du kan sänka det – så länge det fortfarande är högre än det aktuella högsta budet.
Exempel på hur maxbud fungerar
Du lägger ett maxbud på 1 000 kr. Det högsta befintliga budet är 700 kr.
Systemet höjer då automatiskt till nästa budsteg, t.ex. 750 kr.
Om någon annan bjuder 800 kr, höjer systemet dig direkt till 850 kr.
Detta fortsätter tills någon bjuder över ditt maxbud på 1 000 kr – eller tills du vinner auktionen på en lägre nivå.
Budmotorn är skapad för att göra budgivningen enklare för dig som budgivare.
När du lägger ett maxbud som är högre än det nuvarande ledande budet, så sköter budmotorn budgivningen åt dig automatiskt, upp till den nivå du har bestämt. Den höjer alltid ditt bud enligt den gällande budstegen – det vill säga med minsta möjliga höjning – upp till ditt maxbud.
Bud som lagts automatiskt av budmotorn markeras med i historiken.
Har ingen lagt ett högre motbud än ditt nuvarande bud stannar budgivningen där. På så sätt ser systemet till att du aldrig betalar mer än nödvändigt.
Om flera budgivare har lagt samma maxbud är det alltid den som la sitt maxbud först som får fördelen och ligger kvar som ledande budgivare.
För att alla ska ha en rättvis chans förlängs auktionen med 3 minuter efter varje nytt bud som läggs mot under de sista tre minuterna av auktionen. Auktionens avslut förlängs alltså vid varje nytt bud på slutet, tills ingen bjuder mer.
Scenario 1:
Budgivare 1 har lagt ett maxbud på 300 kr.
Budgivare 2 lägger ett maxbud på 500 kr.
→ Budgivare 2 leder då på 350 kr (nästa steg över 300 kr).
Scenario 2:
Budgivare 1 har lagt ett maxbud på 600 kr.
Budgivare 2 lägger ett maxbud på 500 kr.
→ Budgivare 1 leder då på 550 kr (nästa steg över 500 kr).
Scenario 3 (samma maxbud):
Budgivare 1 och budgivare 2 har båda lagt 1 000 kr som maxbud.
→ Den som la sitt maxbud först ligger kvar som ledande budgivare.
Alla bud på Budi är bindande. Det innebär att när du lägger ett bud förbinder du dig att fullfölja köpet om du vinner auktionen. För mer information om vad detta innebär kan du läsa våra auktionsvillkor.
För vissa objekt finns möjlighet till frakt. Om frakt är tillgängligt framgår det alltid i objektets auktionsbeskrivning.
Frakt bokas alltid i samband med betalningen. Då inkluderas fraktkostnaden direkt i din betalning.
För övriga objekt behöver du själv hämta ut varan, eller anlita en extern tjänst som exempelvis Tiptapp eller Mooova. Var noga med att ge hämtaren både ditt kundnummer och ditt kvitto, eftersom dessa krävs vid utlämningen.
Om du skickar ett ombud för att hämta åt dig måste även ombudet kunna visa upp ditt kvitto.
Har du frågor kring ett specifikt objekt är det alltid bäst att höra av dig innan auktionen avslutas, så att vi kan bekräfta möjligheten till frakt och eventuella kostnader.
Hur bokar jag frakt?
Frakten bokas alltid i samband med betalningen, om objektet kan skickas.
Kan någon annan hämta mitt objekt?
Ja. Ombudet måste visa upp ditt kvitto vid utlämningen.
Kan jag använda en extern tjänst som Tiptapp eller Mooova?
Ja. Se till att den som hämtar har ditt kundnummer och kvitto för att kunna hämta ut objektet.
Är frakt alltid möjlig?
Nej, fraktmöjligheten varierar mellan olika objekt. Kontrollera alltid objektets auktionsbeskrivning.
7d 7h
Avslutas: 08 oktober 2025 10:05
Ledande bud
0 kr (exkl. moms)
Du måste bekräfta att du har uppfattat auktionens utlämningstider och plats innan du kan lägga ditt bud.
Utlämning
Inom 7 dagar efter avslutad auktionAdress
BjuvFrakt möjlig
NejÖvrigt
Auktionsmäklare: roger.henriksson@budi.seKom ihåg att även om frakt är ej möjligt så har du möjlighet att hämta ut objektet själv, skicka ett ombud eller använda externa tjänster som t.ex. Tiptapp under den aktuella utlämningstiden.
-
Moms på bud
25%
Bud | Tid | Budgivare |
---|
Bud | Tid | Budgivare |
---|
Mer från samma auktion

Nibe F 2020 med tank

Parti elkabel kabeltrummor

Yamaha båtmotor

Marksten 12 st pallar

Veteranbil Volvo 340

Industri portar

Nibe F2026

Comfort 30 segelbåt

Ventilationstrummor med Tillbehör

Släp TIAB 4P 550 TXI - LGF

Armeringsjärn 8mm 2 buntar - 1044kg/bunt

Armeringsjärn 12mm 2 buntar - 1126kg/bunt
12 av 17 st
