Modulbaserad bostadsetablering i Skellefteå, Totalt 240 lägenheter / Modular Housing Facility in Skellefteå, 240 apartments
Avslutad
Avslutad: 08 april 2026 15:03
Vinnande bud
Kontakta Budi
Du måste bekräfta att du har uppfattat auktionens utlämningstider och plats innan du kan lägga ditt bud.
Kom ihåg att även om frakt är ej möjligt så har du möjlighet att hämta ut objektet själv, skicka ett ombud eller använda externa tjänster som t.ex. Tiptapp under den aktuella utlämningstiden.
Objektbeskrivning
Objekt-ID
22/131082Export
AllowedFor English version – scroll down
Lönsam etablering med cirka 240 lägenheter i Skellefteå – säljes i sin helhet
Nu ges ett unikt tillfälle att förvärva en fullt etablerad och fungerande modulbaserad boendeanläggning i Skellefteå. Anläggningen omfattar cirka 240 lägenheter fördelade på tre bolängor, med kapacitet för cirka 80 boende per länga.
I etableringen ingår även tre längor med serviceenheter samt en tvåvåningsbyggnad med reception, kök och personalutrymmen, vilket skapar goda förutsättningar för en effektiv och professionell drift.
Anläggningen är i drift i dag och säljs i sin helhet, vilket ger köparen möjlighet att ta över och fortsätta verksamheten direkt. Befintligt tillfälligt bygglov gäller initialt i fem år, med möjlighet till ytterligare fem år i dialog med kommunen.
Den nuvarande verksamheten har redan visat ett positivt ekonomiskt resultat, och det finns goda möjligheter att utveckla och öka uthyrningen ytterligare.
Merparten av övriga moduler från den tidigare etableringen är redan sålda och planeras att avflyttas under våren, vilket gör detta till den sista större delen av anläggningen som erbjuds till försäljning.
Övertagande
Övertagande kan ske omgående eller enligt överenskommelse.
Tilläggsmöjlighet
Utöver det som ingår i detta utrop finns även en länga med totalt 76 lägenheter som kan förvärvas mot en tilläggsköpeskilling.
360-visning
Interiör
https://kuula.co/share/collection/7HnqT
Exteriör
https://kuula.co/share/collection/7Hnqz
Receptionsbyggnad – video
Receptionsbyggnaden utgör en central del av etableringen och är utformad för att hantera in- och utcheckning, administration samt service till de boende. Byggnaden inrymmer även gemensamma funktioner såsom kök och personalutrymmen, vilket möjliggör en effektiv drift av hela anläggningen.
Se video för en översikt av receptionsdelen:
https://www.youtube.com/watch?v=MF6gd5a_MrE
Om etableringen
Totalt 240 lägenheter
Fördelade på 120 bostadsmoduler
Varje lägenhet är möblerad och utrustad med:
säng
kök/pentry
dusch
toalett
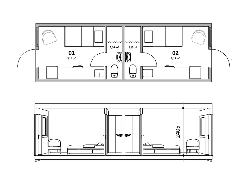
Storlek per lägenhet: cirka 14 m²
Anläggningen inkluderar även:
3 servicelängor
Athens
Dublin
London
Receptionsdel
Gemensamma funktioner såsom tvätt, kök och serviceytor
Modulerna är byggda 2022–2023.
Drift & tillstånd
Anläggningen bedrivs i drift idag med god beläggning
Temporärt bygglov finns, med planerad möjlighet till förlängning 5 + 5 år
Marknadsförutsättningar
Efterfrågan på tillfälligt och projektbaserat boende i Skellefteå-området förväntas vara fortsatt stark.
Detta drivs bland annat av:
Lytens planerade industriella expansion (ramp-up)
Den fortsatta utbyggnaden av Norrbotniabanan
Sammantaget skapar detta goda förutsättningar för fortsatt hög efterfrågan på personalboenden och tillfälliga bostadslösningar i regionen.
Detta utrop omfattar
Bostadslängor
Länga A
Länga B
Länga C
Totalt:
120 bodar
240 lägenheter
Samt:
Servicelängor
Athens
Dublin
London
Receptionsetablering
Tillverkare & specifikation
Tillverkare: Kubly
Modell: R930, Vilan (Bo2)
Längd: 9 000 mm
Bredd: 3 000 mm
Höjd: 3 000 mm
Vikt: cirka 5 850 kg per bod
Transport & hantering
Transport sker med spelbil eller kranbil
För lyft finns fyra lyftöglor i bodtaket
Lyftinstruktion framgår av bild i auktionen
Utlåtande från värderingsman
Helhetsintrycket är mycket gott.
Normalt bruksslitage förekommer såsom:
mindre skav på dörrar
trösklar och karmar
Vissa komponenter såsom:
lås
brandvarnare
kan kräva batteribyte eller enklare service.
Vid besiktning har:
inga fuktskador noterats
inga avvikande lukter uppmärksammats
Kontrollerade installationer och inventarier bedöms fungera, inklusive:
mikro/ugn
kokplattor
radiatorer
ventilation
varmvattenberedare
toalett och dusch
Teknisk beskrivning
Grundläggning
Tryckimpregnerat virke placerat ovan mark och injusterat för att säkerställa att varje längdel ligger i samma nivå.
Takkonstruktion
Låglutande takkonstruktion med svagt fall i modulens längdriktning.
Takytan består av papp.
Brandskydd
Bostadsmoduler: EI30
Övriga lokaler: EI15
Brandskyddskoncept framtaget av:
Brandkonsulten AB
Brandingenjör August Mårtensson
Uppvärmning
Direktverkande el
Luftvärmepumpar
Ventilation
Självdrag
Viktig information
Auktionerna kan komma att avbrytas utan förvarning.
Underhandsförsäljning kan ske och auktionsförfarandet kan när som helst avslutas.
📩 Vid intresse av större volymer eller paketaffär, vänligen kontakta:
Stefan Baronowsky
📧 anbud@budi.se
Köparen ansvarar för att anläggningen omhändertas och hanteras på ett fackmannamässigt sätt.
Profitable housing facility with approximately 240 apartments in Skellefteå – sold as a whole
A unique opportunity is now offered to acquire a fully established and operational modular housing facility in Skellefteå. The site comprises approximately 240 apartments distributed across three residential rows, with capacity for approximately 80 residents per row.
The establishment also includes three service buildings as well as a two-storey building with reception, kitchen and staff facilities, creating excellent conditions for efficient and professional operations.
The facility is currently in operation and is sold as a complete unit, allowing the buyer to take over and continue operations immediately. The existing temporary building permit is valid for an initial period of five years, with the possibility of an additional five-year extension in dialogue with the municipality.
The current operation has already demonstrated positive financial results, and there are strong opportunities to further develop and increase occupancy.
Most of the remaining modules from the previous establishment have already been sold and are scheduled to be removed during the spring, making this the final major part of the facility offered for sale.
Transfer
Transfer can take place immediately or as agreed.
Additional opportunity
In addition to what is included in this offering, one additional residential row comprising a total of 76 apartments may also be acquired for an additional purchase price.
Reception building – video
The reception building is a central part of the facility and is designed to handle check-in, administration, and service for residents. It also includes shared functions such as kitchen facilities and staff areas, enabling efficient management of the entire site.
View the reception area in the video below:
https://www.youtube.com/watch?v=MF6gd5a_MrE
About the facility
240 apartments
Distributed across 120 modules
Each apartment equipped with:
bed
kitchenette
shower
toilet
Size per apartment: approx. 14 m²
The site also includes:
Three service buildings
Athens
Dublin
London
Reception building
Shared facilities including laundry and communal kitchens
Modules were built 2022–2023.
Permits & operation
The facility is currently operating with good occupancy
Temporary building permit in place, with expected extension 5 + 5 years
Market outlook
Demand for temporary and project-based housing in the Skellefteå region is expected to remain strong.
Key drivers include:
Lytens planned industrial ramp-up
The continued expansion of the Norrbotnia Railway
This creates favorable conditions for sustained demand for workforce housing in the region.
This auction includes
Residential rows
Row A
Row B
Row C
Total:
120 modules
240 apartments
Plus:
Service buildings
Athens
Dublin
London
Reception facility
Manufacturer & specifications
Manufacturer: Kubly
Model: R930, Vilan (Bo2)
Length: 9,000 mm
Width: 3,000 mm
Height: 3,000 mm
Weight: approx. 5,850 kg per module
Transport & handling
Transport by winch truck or crane truck
Four lifting eyes located in the roof
Lifting instructions are shown in the auction listing
Important information
Auctions may be withdrawn without prior notice.
Private treaty sales may occur and the auction process may be terminated at any time.
📩 For interest in larger volumes or package deals, please contact:
Stefan Baronowsky
📧 anbud@budi.se
The buyer is responsible for ensuring the modules are handled and managed in a professional and workmanlike manner.
Liknande objekt på auktion just nu
2 ST. ELSKÅP SCHNEIDER, 13962M MUREVA
Parti med solcellsdrivna lampor för staket & fasad, totalt 52 st - fri frakt
Parti med infällda solcellslampor, totalt 44 st - fri frakt
Parti med solcellsdrivna trapp & staketlampor, totalt 100 st - fri frakt
Parti med solcellsdriven fasadbelysning, totalt 22 st - fri frakt
Parti med solcellsdrivna trädgårdslyktor, totalt 28 st - fri frakt
Auktionsinformation
Auktionsavslut
08 april 2026 15:03Visning
Efter ö.k. med hello@budi.seUtlämning
Efter ö.k. med hello@budi.seAdress
SolbackenFrakt
Ej möjligExport
AllowedSäljare
FöretagBudis auktionsvillkor
På Budi.se säljs objekt på uppdrag av konkursbon, finansbolag och företag via auktion. Bud är alltid bindande och kan inte tas bort. Objekt säljs i befintligt skick och utan garanti. Vi saknar möjlighet att genomföra detaljerade tekniska undersökningar av de objekt som säljs.
Inför köp, läs igenom objektsbeskrivningen, jämför utropspris mot liknande varor, undersök objekt vid utannonserad visningstid samt vid avhämtning. Vid betydande avvikelse från objektsbeskrivning, kontakta Budi så snart som möjligt. Köparen ansvarar för att planera och genomföra nedmontering, lastning, transport och bortforsling.
Läs gärna våra fullständiga villkor för mer information:
Villkor / Villkor för företag
Vanliga frågor och svar
Manuella bud (ibland kallat "direktbud" eller helt enkelt "bud") innebär att du anger ett exakt belopp som omedelbart visas som det ledande budet. Det finns ingen automatisk budgivning och inga dolda maxbelopp.
Manuella bud är tillgängliga på objekt med högre budstege.
Hur det fungerar
- Du väljer manuellt bud i budgivningsvyn
- Du anger beloppet du vill bjuda (t.ex. 2 000 kr)
- Om budet är tillräckligt högt blir det direkt det synliga ledande budet
- Det finns ingen dold "budbevakning" - ditt bud är precis vad du ser
Med manuella bud har du full kontroll över exakt vilken nivå du bjuder på. Om någon annan lägger ett högre bud måste du själv aktivt höja ditt bud - systemet gör det inte åt dig.
Kan jag sänka mitt manuella bud?
Nej. Ett manuellt bud kan inte sänkas. Eftersom det synliga budet och ditt maxbelopp alltid är samma, finns det inget utrymme att sänka. Du kan bara höja ditt bud.
Kan jag ändra till maxbud istället?
Ja. Du kan när som helst byta från manuellt bud till maxbud genom att lägga ett nytt bud som är högre än ditt nuvarande.
Ser andra mitt manuella bud?
Ja - det är hela poängen. Ditt manuella bud visas direkt som det ledande budet. Det finns inga dolda belopp.
Vad händer om någon har maxbud som är högre än mitt?
Om du lägger ett manuellt bud som är lägre än någon annans dolda maxbud kommer budmotorn automatiskt att höja deras bud enligt budsteget. De behåller ledningen och ditt bud läggs in i budhistoriken.
Vad händer om mitt manuella bud är högre än deras maxbud?
Då vinner du budgivningen och tar över ledningen. Ditt exakta belopp blir det nya synliga budet.
Exempel på hur manuella bud fungerar
Exempel 1: Du vinner med manuellt bud
Det ledande budet är 15 000 kr. Du lägger ett manuellt bud på 25 000 kr.
Resultat: Det synliga budet blir 25 000 kr och du leder auktionen.
Exempel 2: Du förlorar mot ett maxbud
Användare A har maxbud på 30 000 kr. Det synliga budet är 15 000 kr.
Du lägger ett manuellt bud på 20 000 kr.
Resultat: A:s automatiska budgivning aktiveras och det synliga budet blir 20 500 kr. A leder fortfarande (deras maxbud på 30 000 kr är högre än ditt bud).
Exempel 3: Du slår ut ett maxbud
Användare A har maxbud på 20 000 kr. Det synliga budet är 15 000 kr.
Du lägger ett manuellt bud på 25 000 kr.
Resultat: A:s automatiska budgivning höjer till deras max på 20 000 kr, men ditt manuella bud på 25 000 kr är högre. Du tar över ledningen med synligt bud 25 000 kr.
Skillnaden mot maxbud
| Egenskap | Maxbud | Manuellt bud |
|---|---|---|
| Synligt bud | Stegar upp automatiskt | Exakt det du anger |
| Automatisk budgivning | Ja | Nej |
| Dolt maxbelopp | Ja | Nej (max = synligt) |
| Kan sänkas | Ja (ned till synligt bud) | Nej |
En serviceavgift tillkommer på alla produkter som säljs via Budi. Avgiften läggs ovanpå det vinnande budet, och blir därmed en del av det totala belopp du som köpare betalar.
Varför finns serviceavgiften?
Serviceavgiften täcker våra kostnader för hantering, administration och den service vi erbjuder i samband med försäljningen. På så sätt kan vi säkerställa en trygg och smidig köpupplevelse.
Hur beräknas serviceavgiften?
Serviceavgiften sätts i relation till marknadsvärdet.
Hos Budi kan serviceavgiften beräknas på två olika sätt beroende på objektet - fast eller dynamisk- Det framgår på objektssidan vad som gäller för ett visst objekt.
Fast serviceavgift: Vissa objekt har en fast serviceavgift som är densamma oavsett det vinnande budet. Denna fasta summa påverkas inte av själva budgivningen.
Dynamisk serviceavgift: För vissa objekt beräknas serviceavgiften som en procent av det vinnande budet, med ett minimibelopp. Det innebär att ju högre det vinnande budet blir, desto högre blir serviceavgiften - men den kommer aldrig att bli lägre än minimibeloppet.
Ju högre värde ett objekt har, desto större blir både det juridiska och ekonomiska ansvar som följer med försäljningen.
Inom auktions- och mäklarbranschen är det praxis att avgifter bestäms procentuellt eller som en fast summa baserat på försäljningspris eller marknadsvärde. Högre värderad egendom belastas med en något högre avgift, vilket motsvarar den ökade komplexiteten, risken och det ansvar som hanteringen av mer värdefulla objekt medför.
Tillkommer moms på serviceavgiften?
Ja, 25 % moms läggs alltid på serviceavgiften.
När och var kan jag se serviceavgiften?
Serviceavgiften visas när du är inloggad på vår hemsida. Vi visar alltid avgiften tydligt innan du lägger ditt bud - så att du vet exakt vad totalpriset blir.
Exempel
Exempel 1
Scenario: Du vinner en auktion med ett bud på 10 00 SEK
- Serviceavgift i procent: 16%
- Minsta serviceavgift: 195 kr
Beräkning:
- Procentbaserat belopp: 10 00 kr × 16% = 160 SEK
- Minsta belopp: 195 kr
- Eftersom 160 kr < 195 kr, gäller minimibeloppet
- Din serviceavgift: 195 kr
I detta fall, även om 16% av ditt bud bara skulle bli 160 SEK, betalar du minimibeloppet på 195 kr.
Exempel 2
Scenario: Du vinner en auktion med ett bud på 10 000 SEK
- Serviceavgift i procent: 16%
- Minsta serviceavgift: 195 SEK
Beräkning:
- Procentbaserat belopp: 10 000 SEK × 16% = 1 600 kr
- Minsta belopp: 195 kr
- Eftersom 1 600 kr > 195 kr, gäller det procentbaserade beloppet
- Din serviceavgift: 1 600 kr
I detta fall resulterar den procentbaserade beräkningen i en högre avgift än minimibeloppet, så du betalar 1 600 kr.
Reservationspriset sätts av uppdragsgivaren (säljaren) och är det lägsta belopp som säljaren accepterar för produkten. Syftet är att säkerställa att varan inte säljs under ett i förväg bestämt värde.
Om du vinner en budgivning där reservationspriset inte har uppnåtts, kommer vi att kontakta dig för att höra om du är intresserad av att mötas på en högre nivå. Vi kan då föra en dialog med säljaren för din räkning för att se om det går att komma överens om ett pris som båda parter accepterar.
Har alla objekt ett reservationspris?
Nej, på Budi har de flesta objekt inget reservationspris. Det betyder att budgivningen är bindande från första budet och att objektet säljs till högsta bud när auktionen stänger. Om ett objekt har reservationspris framgår det i auktionsinformationen och du ser också om ditt bud har uppnått det eller inte.
Vad händer om reservationspriset inte uppnås?
Vi kontaktar dig som budgivare för att höra om du vill diskutera ett högre belopp, och för en dialog med säljaren för att se om en överenskommelse är möjlig.
Kan jag fortfarande köpa om jag vinner under reservationspriset?
Inte direkt. Ditt bud är inte automatiskt godkänt av säljaren, men vi försöker hitta en lösning om du är intresserad.
Ser jag reservationspriset i förväg?
Nej, reservationspriset är dolt under budgivningen. Det enda du ser är om ditt bud har uppnått det eller inte.
Varför finns reservationspris?
För att ge säljaren trygghet i att inte behöva sälja objektet under ett för lågt pris.
Alla bud på Budi är maxbud. Det innebär att du anger det högsta belopp du är beredd att betala för ett objekt.
Vår budmotor sköter sedan budgivningen åt dig automatiskt. Den höjer ditt bud i enlighet med de fördefinierade budstegen – alltid med minsta möjliga höjning – upp till ditt maxbud. På så sätt behöver du inte själv bevaka auktionen varje gång någon annan bjuder.
Bud som lagts automatiskt av budmotorn markeras med i historiken.
Maxbud kallas ibland för "autobud" eller "automatiskt bud" hos andra auktionsplattformar. Det är samma koncept – du anger ett maxbelopp och systemet sköter budgivningen åt dig.
Kan jag ändra mitt maxbud?
För att höja maxbudet: Du kan när som helst höja ditt maxbud genom att skriva in ett nytt belopp. Systemet uppdaterar det direkt.
Sänka maxbudet: Du kan sänka ditt maxbud, men bara så länge ditt nya maxbud fortfarande ligger över det aktuella högsta budet i auktionen.
Måste jag alltid lägga bud manuellt?
Nej. När du har lagt ett maxbud sköter systemet automatiskt dina höjningar enligt budstegen, upp till ditt maxbelopp.
Ser andra mitt maxbud?
Nej. Ditt maxbud är dolt för övriga budgivare. De ser bara det aktuella ledande budet.
Vad händer om två lägger samma maxbud?
Den som la sitt maxbud först får fördelen och ligger kvar som ledande budgivare.
Kan jag ångra ett maxbud?
Du kan inte ta bort ett maxbud helt, men du kan sänka det – så länge det fortfarande är högre än det aktuella högsta budet.
Exempel på hur maxbud fungerar
Du lägger ett maxbud på 1 000 kr. Det högsta befintliga budet är 700 kr.
Systemet höjer då automatiskt till nästa budsteg, t.ex. 750 kr.
Om någon annan bjuder 800 kr, höjer systemet dig direkt till 850 kr.
Detta fortsätter tills någon bjuder över ditt maxbud på 1 000 kr – eller tills du vinner auktionen på en lägre nivå.
Budmotorn är skapad för att göra budgivningen enklare för dig som budgivare.
På Budi finns två sätt att lägga bud:
- Maxbud - Systemet budar automatiskt åt dig upp till din maxnivå. Tillgängligt på alla objekt.
- Manuellt bud - Ditt bud går direkt till det exakta beloppet. Tillgängligt på utvalda objekt med högre budsteg.
Bud som lagts automatiskt av budmotorn markeras med i historiken.
Maxbud - automatisk budgivning
När du lägger ett maxbud sköter budmotorn budgivningen åt dig automatiskt:
- Du anger ditt maxbud (t.ex. 20 000 kr)
- Systemet lägger bud åt dig i steg (t.ex. +500 kr) upp till ditt max
- Det synliga budet visar bara vad som behövs för att leda budgivningen
- Om någon annan bjuder under ditt max höjs det synliga budet automatiskt
Har ingen lagt ett högre motbud stannar budgivningen där. På så sätt ser systemet till att du aldrig betalar mer än nödvändigt.
Manuellt bud - full kontroll
Med manuellt bud anger du ett exakt belopp som visas direkt som det ledande budet. Budmotorn aktiveras inte - du måste själv bevaka auktionen och höja ditt bud om någon bjuder över.
Manuella bud är tillgängliga på objekt där budsteget är minst 500 kr.
Scenarion
Scenario 1: Du har högst maxbud
Budgivare 1 har lagt ett maxbud på 15 000 kr. Budgivare 2 lägger ett maxbud på 20 000 kr.
→ Budgivare 2 leder på 15 500 kr (nästa budsteg över 15 000 kr).
Scenario 2: Någon annan har högre maxbud
Budgivare 1 har lagt ett maxbud på 25 000 kr. Budgivare 2 lägger ett maxbud på 20 000 kr.
→ Budgivare 1 leder på 20 500 kr (nästa budsteg över 20 000 kr).
Scenario 3: Samma maxbud
Budgivare 1 och budgivare 2 har båda lagt 30 000 kr som maxbud.
→ Den som la sitt maxbud först ligger kvar som ledande budgivare.
Scenario 4: Manuellt bud mot maxbud
Budgivare 1 har ett maxbud på 25 000 kr (synligt bud: 15 000 kr). Budgivare 2 lägger ett manuellt bud på 20 000 kr.
→ Budmotorn höjer automatiskt budgivare 1:s bud till 20 500 kr. Budgivare 1 leder fortfarande.
Scenario 5: Manuellt bud slår ut maxbud
Budgivare 1 har ett maxbud på 20 000 kr (synligt bud: 15 000 kr). Budgivare 2 lägger ett manuellt bud på 25 000 kr.
→ Budgivare 2 leder med exakt 25 000 kr. Budmotorn kunde inte hjälpa budgivare 1 eftersom deras maxbud inte räckte.
Auktionsförlängning
För att alla ska ha en rättvis chans förlängs auktionen med 3 minuter efter varje nytt bud som läggs under de sista tre minuterna av auktionen. Auktionens avslut förlängs alltså vid varje nytt bud på slutet, tills ingen bjuder mer.
Vanliga frågor
Kan jag alltid välja mellan maxbud och manuellt bud?
Maxbud är alltid tillgängligt. Manuella bud är tillgängliga på objekt där budsteget är minst 500 kr.
Aktiveras budmotorn för manuella bud?
Nej. Budmotorn aktiveras bara för maxbud. Vid manuella bud måste du själv bevaka auktionen och höja ditt bud.
Kan jag se andras maxbud?
Nej. Maxbud är dolda för andra budgivare. Du ser bara det aktuella ledande budet.
Hur vet jag om ett bud lagts automatiskt?
Bud som lagts automatiskt av budmotorn markeras med i budhistoriken.
Alla bud på Budi är bindande. Det innebär att när du lägger ett bud förbinder du dig att fullfölja köpet om du vinner auktionen. För mer information om vad detta innebär kan du läsa våra auktionsvillkor.
För vissa objekt finns möjlighet till frakt. Om frakt är tillgängligt framgår det alltid i objektets auktionsbeskrivning.
Frakt bokas alltid i samband med betalningen. DÃ¥ inkluderas fraktkostnaden direkt i din betalning.
För övriga objekt behöver du själv hämta ut varan, eller anlita en extern tjänst som exempelvis Tiptapp eller Mooova. Var noga med att ge hämtaren både ditt kundnummer och ditt kvitto, eftersom dessa krävs vid utlämningen.
Om du skickar ett ombud för att hämta åt dig måste även ombudet kunna visa upp ditt kvitto.
Har du frågor kring ett specifikt objekt är det alltid bäst att höra av dig innan auktionen avslutas, så att vi kan bekräfta möjligheten till frakt och eventuella kostnader.
Hur bokar jag frakt?
Frakten bokas alltid i samband med betalningen, om objektet kan skickas.
Kan någon annan hämta mitt objekt?
Ja. Ombudet måste visa upp ditt kvitto vid utlämningen.
Kan jag använda en extern tjänst som Tiptapp eller Mooova?
Ja. Se till att den som hämtar har ditt kundnummer och kvitto för att kunna hämta ut objektet.
Är frakt alltid möjlig?
Nej, fraktmöjligheten varierar mellan olika objekt. Kontrollera alltid objektets auktionsbeskrivning.
Avslutad
Avslutad: 08 april 2026 15:03
Vinnande bud
Kontakta Budi
Du måste bekräfta att du har uppfattat auktionens utlämningstider och plats innan du kan lägga ditt bud.
Kom ihåg att även om frakt är ej möjligt så har du möjlighet att hämta ut objektet själv, skicka ett ombud eller använda externa tjänster som t.ex. Tiptapp under den aktuella utlämningstiden.
Mer från samma kategori
Kryokabin, Cryosauna Cryomed Pro 2020 -22
Superlifter 8D HIFU, FG660D+ PRO - 2023
Kemianalysator, MNCHIP Celercare M5
Kyl- och värmeväska Makita CW004GZ
Kyl- och värmeväska Makita CW004GZ
Hårborttagningsmaskin, Soprano Alma Accord
Maskin för elektromagnetisk skulptering, Neosculpt 40 EM Max -2021
POSTLÅDA M 2000B SILVER
Hudvårdsmaskin, Aquaglow, Skin Aqua Facial VS-B, 7 in 1 -2021
Behandlingsbänk Weelko, elektrisk
Rak trappa 3250 mm.
Kylautomat Vision, Combo Plus V7
12 av 23 st