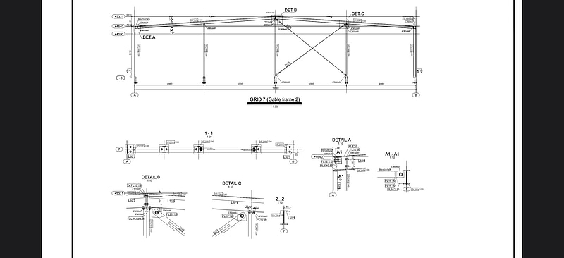
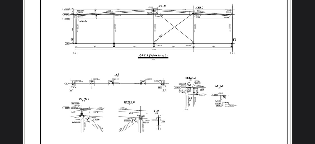
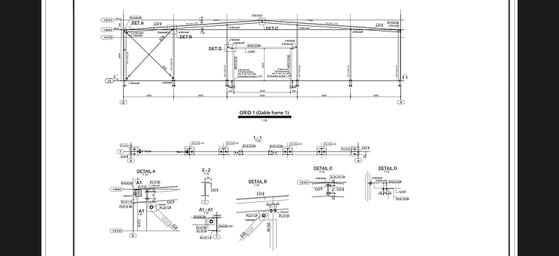
Stålhall, ca 745 m², 37,8x19,7 m
Avslutad
Avslutad: 28 januari 2026 14:04
Vinnande bud
Kontakta Budi
Du måste bekräfta att du har uppfattat auktionens utlämningstider och plats innan du kan lägga ditt bud.
Utlämning
Enligt ö.k. med marcus.vangstrom@budi.seAdress
VärnamoFrakt
MöjligÖvrigt
Frakt möjlig, fraktförfrågan sker separat mellan köpare och säljare efter avslutad auktion. Vid frågor kontakta: marcus.vangstrom@budi.seObjektbeskrivning
Objekt-ID
1/124998Export
AllowedStålhall Give Steel 37,8x19,7m.
Teknisk specifikation:
Stommen är dimensionerad enligt SS-EN 1090:2015, säkerhetsklass SC3 och utförandeklass EXC2.
Terrängklass: II
Karakteristisk vindhastighet: 24 m/s
Vindlast: 0,62 kN/m²
Snelast: 2,50 kN/m²
Tillåten taklast: 50 kg/m²
Stålkonstruktionen är blästrad och målad för korrosionsskydd C2/M i en av standardkulörerna.
Reparationsfärg medföljer. Eventuella reparationer utförs av köparen.
Konstruktionen levereras utan brandteknisk bärförmåga (klass R0).
Det förutsätts att:
– Takbeklädnaden fungerar som skivverkan
– Ramstolpar (pelare) är vridstyva tack vare beklädnad
– Takplåtar monteras som enkla eller dubbla spänn i förband
Innehåll:
– 5 st fackverksbalkar: 19,760 m – 0,590 m – 4,000° – c/c 6,300 m
– 2 st gavelramar: 19,760 m – 4,640 m – 4,000° – c/c 6,300 m
– 10 st fasadpelare: 4,640 m – c/c 6,300 m
– 4 st gavelpelare: 4,760–5,200 m
– 3 st omfattningar för fönster: 3,00 x 3,00 m
– 1 st omfattning för takskjutport: 4,00 x 3,00 m
– 1 st omfattning för dubbla aluminiumglasdörrar: 4,00 x 2,30 m
– 1 set montagestag
– 4 st vindkryss i väggar
Kantbalk/kronbalk ingår ej.
Oanvänd och ej monterad.
All dokumentaion finns.
Frakt kan ordnas mot ersättning.
Liknande objekt på auktion just nu
VÄXTHUS VITAVIA VENUS 6200 SVART MED SOCKEL ALU/GLAS 6,2M² - ENDAST RAM
36 ST. SOLAR PANEL 380W PERC - ZNSHINE SOLAR-380W BIFACIAL SR
36 ST. SOLAR PANEL 380W PERC - ZNSHINE SOLAR-380W BIFACIAL SR
Ca 23 sektioner butikshyllor samt Pan-Oston kassalinje
LEKSTUGA PALMAKO FELIX OBEHANDLAD 2,0M²
36 ST. SOLAR PANEL 380W PERC - ZNSHINE SOLAR-380W BIFACIAL SR
Auktionsinformation
Auktionsavslut
28 januari 2026 14:04Utlämning
Enligt ö.k. med marcus.vangstrom@budi.seAdress
VärnamoFrakt
MöjligExport
AllowedÖvrigt
Frakt möjlig, fraktförfrågan sker separat mellan köpare och säljare efter avslutad auktion. Vid frågor kontakta: marcus.vangstrom@budi.seSäljare
FöretagBudis auktionsvillkor
På Budi.se säljs objekt på uppdrag av konkursbon, finansbolag och företag via auktion. Bud är alltid bindande och kan inte tas bort. Objekt säljs i befintligt skick och utan garanti. Vi saknar möjlighet att genomföra detaljerade tekniska undersökningar av de objekt som säljs.
Inför köp, läs igenom objektsbeskrivningen, jämför utropspris mot liknande varor, undersök objekt vid utannonserad visningstid samt vid avhämtning. Vid betydande avvikelse från objektsbeskrivning, kontakta Budi så snart som möjligt. Köparen ansvarar för att planera och genomföra nedmontering, lastning, transport och bortforsling.
Läs gärna våra fullständiga villkor för mer information:
Villkor / Villkor för företag
Ansvarig auktionsmäklare
Marcus Vångström
Norrköping, Östergötlands länVanliga frågor och svar
Manuella bud (ibland kallat "direktbud" eller helt enkelt "bud") innebär att du anger ett exakt belopp som omedelbart visas som det ledande budet. Det finns ingen automatisk budgivning och inga dolda maxbelopp.
Manuella bud är tillgängliga på objekt med högre budstege.
Hur det fungerar
- Du väljer manuellt bud i budgivningsvyn
- Du anger beloppet du vill bjuda (t.ex. 2 000 kr)
- Om budet är tillräckligt högt blir det direkt det synliga ledande budet
- Det finns ingen dold "budbevakning" - ditt bud är precis vad du ser
Med manuella bud har du full kontroll över exakt vilken nivå du bjuder på. Om någon annan lägger ett högre bud måste du själv aktivt höja ditt bud - systemet gör det inte åt dig.
Kan jag sänka mitt manuella bud?
Nej. Ett manuellt bud kan inte sänkas. Eftersom det synliga budet och ditt maxbelopp alltid är samma, finns det inget utrymme att sänka. Du kan bara höja ditt bud.
Kan jag ändra till maxbud istället?
Ja. Du kan när som helst byta från manuellt bud till maxbud genom att lägga ett nytt bud som är högre än ditt nuvarande.
Ser andra mitt manuella bud?
Ja - det är hela poängen. Ditt manuella bud visas direkt som det ledande budet. Det finns inga dolda belopp.
Vad händer om någon har maxbud som är högre än mitt?
Om du lägger ett manuellt bud som är lägre än någon annans dolda maxbud kommer budmotorn automatiskt att höja deras bud enligt budsteget. De behåller ledningen och ditt bud läggs in i budhistoriken.
Vad händer om mitt manuella bud är högre än deras maxbud?
Då vinner du budgivningen och tar över ledningen. Ditt exakta belopp blir det nya synliga budet.
Exempel på hur manuella bud fungerar
Exempel 1: Du vinner med manuellt bud
Det ledande budet är 15 000 kr. Du lägger ett manuellt bud på 25 000 kr.
Resultat: Det synliga budet blir 25 000 kr och du leder auktionen.
Exempel 2: Du förlorar mot ett maxbud
Användare A har maxbud på 30 000 kr. Det synliga budet är 15 000 kr.
Du lägger ett manuellt bud på 20 000 kr.
Resultat: A:s automatiska budgivning aktiveras och det synliga budet blir 20 500 kr. A leder fortfarande (deras maxbud på 30 000 kr är högre än ditt bud).
Exempel 3: Du slår ut ett maxbud
Användare A har maxbud på 20 000 kr. Det synliga budet är 15 000 kr.
Du lägger ett manuellt bud på 25 000 kr.
Resultat: A:s automatiska budgivning höjer till deras max på 20 000 kr, men ditt manuella bud på 25 000 kr är högre. Du tar över ledningen med synligt bud 25 000 kr.
Skillnaden mot maxbud
| Egenskap | Maxbud | Manuellt bud |
|---|---|---|
| Synligt bud | Stegar upp automatiskt | Exakt det du anger |
| Automatisk budgivning | Ja | Nej |
| Dolt maxbelopp | Ja | Nej (max = synligt) |
| Kan sänkas | Ja (ned till synligt bud) | Nej |
En serviceavgift tillkommer på alla produkter som säljs via Budi. Avgiften läggs ovanpå det vinnande budet, och blir därmed en del av det totala belopp du som köpare betalar.
Varför finns serviceavgiften?
Serviceavgiften täcker våra kostnader för hantering, administration och den service vi erbjuder i samband med försäljningen. På så sätt kan vi säkerställa en trygg och smidig köpupplevelse.
Hur beräknas serviceavgiften?
Serviceavgiften sätts i relation till marknadsvärdet.
Hos Budi kan serviceavgiften beräknas på två olika sätt beroende på objektet - fast eller dynamisk- Det framgår på objektssidan vad som gäller för ett visst objekt.
Fast serviceavgift: Vissa objekt har en fast serviceavgift som är densamma oavsett det vinnande budet. Denna fasta summa påverkas inte av själva budgivningen.
Dynamisk serviceavgift: För vissa objekt beräknas serviceavgiften som en procent av det vinnande budet, med ett minimibelopp. Det innebär att ju högre det vinnande budet blir, desto högre blir serviceavgiften - men den kommer aldrig att bli lägre än minimibeloppet.
Ju högre värde ett objekt har, desto större blir både det juridiska och ekonomiska ansvar som följer med försäljningen.
Inom auktions- och mäklarbranschen är det praxis att avgifter bestäms procentuellt eller som en fast summa baserat på försäljningspris eller marknadsvärde. Högre värderad egendom belastas med en något högre avgift, vilket motsvarar den ökade komplexiteten, risken och det ansvar som hanteringen av mer värdefulla objekt medför.
Tillkommer moms på serviceavgiften?
Ja, 25 % moms läggs alltid på serviceavgiften.
När och var kan jag se serviceavgiften?
Serviceavgiften visas när du är inloggad på vår hemsida. Vi visar alltid avgiften tydligt innan du lägger ditt bud - så att du vet exakt vad totalpriset blir.
Exempel
Exempel 1
Scenario: Du vinner en auktion med ett bud på 10 00 SEK
- Serviceavgift i procent: 16%
- Minsta serviceavgift: 195 kr
Beräkning:
- Procentbaserat belopp: 10 00 kr × 16% = 160 SEK
- Minsta belopp: 195 kr
- Eftersom 160 kr < 195 kr, gäller minimibeloppet
- Din serviceavgift: 195 kr
I detta fall, även om 16% av ditt bud bara skulle bli 160 SEK, betalar du minimibeloppet på 195 kr.
Exempel 2
Scenario: Du vinner en auktion med ett bud på 10 000 SEK
- Serviceavgift i procent: 16%
- Minsta serviceavgift: 195 SEK
Beräkning:
- Procentbaserat belopp: 10 000 SEK × 16% = 1 600 kr
- Minsta belopp: 195 kr
- Eftersom 1 600 kr > 195 kr, gäller det procentbaserade beloppet
- Din serviceavgift: 1 600 kr
I detta fall resulterar den procentbaserade beräkningen i en högre avgift än minimibeloppet, så du betalar 1 600 kr.
Reservationspriset sätts av uppdragsgivaren (säljaren) och är det lägsta belopp som säljaren accepterar för produkten. Syftet är att säkerställa att varan inte säljs under ett i förväg bestämt värde.
Om du vinner en budgivning där reservationspriset inte har uppnåtts, kommer vi att kontakta dig för att höra om du är intresserad av att mötas på en högre nivå. Vi kan då föra en dialog med säljaren för din räkning för att se om det går att komma överens om ett pris som båda parter accepterar.
Har alla objekt ett reservationspris?
Nej, på Budi har de flesta objekt inget reservationspris. Det betyder att budgivningen är bindande från första budet och att objektet säljs till högsta bud när auktionen stänger. Om ett objekt har reservationspris framgår det i auktionsinformationen och du ser också om ditt bud har uppnått det eller inte.
Vad händer om reservationspriset inte uppnås?
Vi kontaktar dig som budgivare för att höra om du vill diskutera ett högre belopp, och för en dialog med säljaren för att se om en överenskommelse är möjlig.
Kan jag fortfarande köpa om jag vinner under reservationspriset?
Inte direkt. Ditt bud är inte automatiskt godkänt av säljaren, men vi försöker hitta en lösning om du är intresserad.
Ser jag reservationspriset i förväg?
Nej, reservationspriset är dolt under budgivningen. Det enda du ser är om ditt bud har uppnått det eller inte.
Varför finns reservationspris?
För att ge säljaren trygghet i att inte behöva sälja objektet under ett för lågt pris.
Alla bud på Budi är maxbud. Det innebär att du anger det högsta belopp du är beredd att betala för ett objekt.
Vår budmotor sköter sedan budgivningen åt dig automatiskt. Den höjer ditt bud i enlighet med de fördefinierade budstegen – alltid med minsta möjliga höjning – upp till ditt maxbud. På så sätt behöver du inte själv bevaka auktionen varje gång någon annan bjuder.
Bud som lagts automatiskt av budmotorn markeras med i historiken.
Maxbud kallas ibland för "autobud" eller "automatiskt bud" hos andra auktionsplattformar. Det är samma koncept – du anger ett maxbelopp och systemet sköter budgivningen åt dig.
Kan jag ändra mitt maxbud?
För att höja maxbudet: Du kan när som helst höja ditt maxbud genom att skriva in ett nytt belopp. Systemet uppdaterar det direkt.
Sänka maxbudet: Du kan sänka ditt maxbud, men bara så länge ditt nya maxbud fortfarande ligger över det aktuella högsta budet i auktionen.
Måste jag alltid lägga bud manuellt?
Nej. När du har lagt ett maxbud sköter systemet automatiskt dina höjningar enligt budstegen, upp till ditt maxbelopp.
Ser andra mitt maxbud?
Nej. Ditt maxbud är dolt för övriga budgivare. De ser bara det aktuella ledande budet.
Vad händer om två lägger samma maxbud?
Den som la sitt maxbud först får fördelen och ligger kvar som ledande budgivare.
Kan jag ångra ett maxbud?
Du kan inte ta bort ett maxbud helt, men du kan sänka det – så länge det fortfarande är högre än det aktuella högsta budet.
Exempel på hur maxbud fungerar
Du lägger ett maxbud på 1 000 kr. Det högsta befintliga budet är 700 kr.
Systemet höjer då automatiskt till nästa budsteg, t.ex. 750 kr.
Om någon annan bjuder 800 kr, höjer systemet dig direkt till 850 kr.
Detta fortsätter tills någon bjuder över ditt maxbud på 1 000 kr – eller tills du vinner auktionen på en lägre nivå.
Budmotorn är skapad för att göra budgivningen enklare för dig som budgivare.
På Budi finns två sätt att lägga bud:
- Maxbud - Systemet budar automatiskt åt dig upp till din maxnivå. Tillgängligt på alla objekt.
- Manuellt bud - Ditt bud går direkt till det exakta beloppet. Tillgängligt på utvalda objekt med högre budsteg.
Bud som lagts automatiskt av budmotorn markeras med i historiken.
Maxbud - automatisk budgivning
När du lägger ett maxbud sköter budmotorn budgivningen åt dig automatiskt:
- Du anger ditt maxbud (t.ex. 20 000 kr)
- Systemet lägger bud åt dig i steg (t.ex. +500 kr) upp till ditt max
- Det synliga budet visar bara vad som behövs för att leda budgivningen
- Om någon annan bjuder under ditt max höjs det synliga budet automatiskt
Har ingen lagt ett högre motbud stannar budgivningen där. På så sätt ser systemet till att du aldrig betalar mer än nödvändigt.
Manuellt bud - full kontroll
Med manuellt bud anger du ett exakt belopp som visas direkt som det ledande budet. Budmotorn aktiveras inte - du måste själv bevaka auktionen och höja ditt bud om någon bjuder över.
Manuella bud är tillgängliga på objekt där budsteget är minst 500 kr.
Scenarion
Scenario 1: Du har högst maxbud
Budgivare 1 har lagt ett maxbud på 15 000 kr. Budgivare 2 lägger ett maxbud på 20 000 kr.
→ Budgivare 2 leder på 15 500 kr (nästa budsteg över 15 000 kr).
Scenario 2: Någon annan har högre maxbud
Budgivare 1 har lagt ett maxbud på 25 000 kr. Budgivare 2 lägger ett maxbud på 20 000 kr.
→ Budgivare 1 leder på 20 500 kr (nästa budsteg över 20 000 kr).
Scenario 3: Samma maxbud
Budgivare 1 och budgivare 2 har båda lagt 30 000 kr som maxbud.
→ Den som la sitt maxbud först ligger kvar som ledande budgivare.
Scenario 4: Manuellt bud mot maxbud
Budgivare 1 har ett maxbud på 25 000 kr (synligt bud: 15 000 kr). Budgivare 2 lägger ett manuellt bud på 20 000 kr.
→ Budmotorn höjer automatiskt budgivare 1:s bud till 20 500 kr. Budgivare 1 leder fortfarande.
Scenario 5: Manuellt bud slår ut maxbud
Budgivare 1 har ett maxbud på 20 000 kr (synligt bud: 15 000 kr). Budgivare 2 lägger ett manuellt bud på 25 000 kr.
→ Budgivare 2 leder med exakt 25 000 kr. Budmotorn kunde inte hjälpa budgivare 1 eftersom deras maxbud inte räckte.
Auktionsförlängning
För att alla ska ha en rättvis chans förlängs auktionen med 3 minuter efter varje nytt bud som läggs under de sista tre minuterna av auktionen. Auktionens avslut förlängs alltså vid varje nytt bud på slutet, tills ingen bjuder mer.
Vanliga frågor
Kan jag alltid välja mellan maxbud och manuellt bud?
Maxbud är alltid tillgängligt. Manuella bud är tillgängliga på objekt där budsteget är minst 500 kr.
Aktiveras budmotorn för manuella bud?
Nej. Budmotorn aktiveras bara för maxbud. Vid manuella bud måste du själv bevaka auktionen och höja ditt bud.
Kan jag se andras maxbud?
Nej. Maxbud är dolda för andra budgivare. Du ser bara det aktuella ledande budet.
Hur vet jag om ett bud lagts automatiskt?
Bud som lagts automatiskt av budmotorn markeras med i budhistoriken.
Alla bud på Budi är bindande. Det innebär att när du lägger ett bud förbinder du dig att fullfölja köpet om du vinner auktionen. För mer information om vad detta innebär kan du läsa våra auktionsvillkor.
För vissa objekt finns möjlighet till frakt. Om frakt är tillgängligt framgår det alltid i objektets auktionsbeskrivning.
Frakt bokas alltid i samband med betalningen. DÃ¥ inkluderas fraktkostnaden direkt i din betalning.
För övriga objekt behöver du själv hämta ut varan, eller anlita en extern tjänst som exempelvis Tiptapp eller Mooova. Var noga med att ge hämtaren både ditt kundnummer och ditt kvitto, eftersom dessa krävs vid utlämningen.
Om du skickar ett ombud för att hämta åt dig måste även ombudet kunna visa upp ditt kvitto.
Har du frågor kring ett specifikt objekt är det alltid bäst att höra av dig innan auktionen avslutas, så att vi kan bekräfta möjligheten till frakt och eventuella kostnader.
Hur bokar jag frakt?
Frakten bokas alltid i samband med betalningen, om objektet kan skickas.
Kan någon annan hämta mitt objekt?
Ja. Ombudet måste visa upp ditt kvitto vid utlämningen.
Kan jag använda en extern tjänst som Tiptapp eller Mooova?
Ja. Se till att den som hämtar har ditt kundnummer och kvitto för att kunna hämta ut objektet.
Är frakt alltid möjlig?
Nej, fraktmöjligheten varierar mellan olika objekt. Kontrollera alltid objektets auktionsbeskrivning.
Avslutad
Avslutad: 28 januari 2026 14:04
Vinnande bud
Kontakta Budi
Du måste bekräfta att du har uppfattat auktionens utlämningstider och plats innan du kan lägga ditt bud.
Utlämning
Enligt ö.k. med marcus.vangstrom@budi.seAdress
VärnamoFrakt
MöjligÖvrigt
Frakt möjlig, fraktförfrågan sker separat mellan köpare och säljare efter avslutad auktion. Vid frågor kontakta: marcus.vangstrom@budi.seMer från samma kategori
Markvibrator Wacker Neuson DPU6555 – 2021
Personalvagn Norrlandsvagnar – Komplett med kök, dusch & omklädning
Sopmaskin Brodd Son Nordic
Hjullastare CAT 908M -2016 | Gafflar & Skopa
Grävmaskin Hitachi ZX135US-6 -2019 | Skogsutrustad
Hjullastare Giant G2700 X-Tra HD -2022 | Hytt
Minilastare Giant V451T -2008 | Redskap
Pelarlift Genie GR20 med släp 2022
Planerskopa Götene RT HD 1650L/2000 mm, S70-keps, s/n 43238-4
Multiskopa Siljum 1.9D -2023
Gallerskopa 2000 SB Grävtillbehör AB
Dieseltank Emiliana Serbatoi, 220 l, 12 V, 50 l/min
12 av 74 st