40 st Bodar med 2 lägenheter i varje (Modulby) - Etablering L (40 modular units with 2 apartments in each – Block L)
Avslutad
Avslutad: 04 februari 2026 15:07
Vinnande bud
Kontakta Budi
Endast företag får lägga bud på detta objekt
Du måste bekräfta att du har uppfattat auktionens utlämningstider och plats innan du kan lägga ditt bud.
Kom ihåg att även om frakt är ej möjligt så har du möjlighet att hämta ut objektet själv, skicka ett ombud eller använda externa tjänster som t.ex. Tiptapp under den aktuella utlämningstiden.
Objektbeskrivning
Objekt-ID
2/126442Export
AllowedMarknadsvärde
12 400 000 krFor English version – scroll down
Sveriges största bodetablering – säljes via auktion
Nu ges ett unikt tillfälle att förvärva Sveriges största bodetablering genom auktionsförfarande på Budi.se. Etableringen omfattar ett mycket stort antal fullt utrustade bostadsmoduler, lämpade för tillfälligt boende, personalboende eller andra projektbaserade behov.
360-visning
Om etableringen
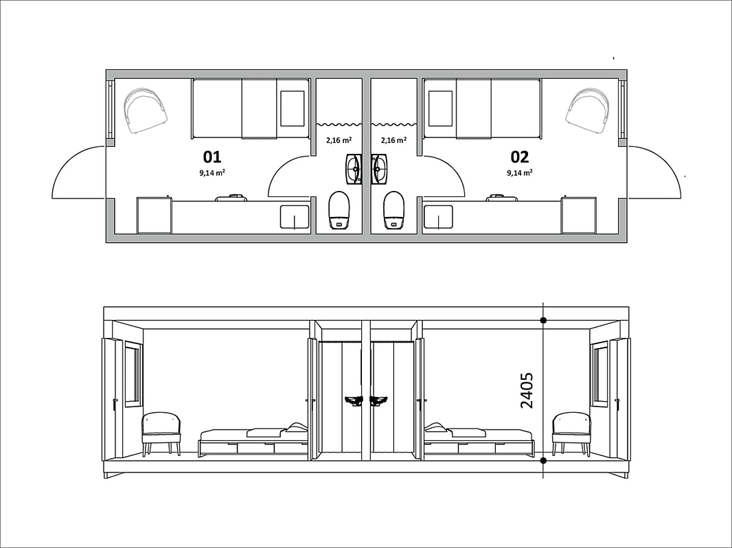
Totalt över 1 200 lägenheter, fördelade på cirka 600 bodar
Varje lägenhet är möblerad och utrustad med säng, kök/pentry, dusch och toalett
Varje lägenhet är om cirka 14 m²
Gemensamma ytor såsom tvättstuga och kök ingår i etableringen
Bodarna är byggda mellan 2022–2023
Ute till försälkning nu är K och L, vardera omfattande:
40 bodar
80 lägenheter per länga
👉 Denna auktion avser: Bodetablering – Länga L
Tillverkare & specifikation
Tillverkare: Kubly
Modell: R930, Vilan (Bo2)
Längd: 9 000 mm
Bredd: 3 000 mm
Höjd: 3 000 mm
Vikt: ca 5 850 kg per bod
Transport & hantering
Transport sker med spelbil eller kranbil
För lyft finns 4 st lyftöglor i bodtaket
Lyftinstruktion: se bifogad bild i auktionen
Utlåtande från värderingsman
Helhetsintrycket är mycket bra.
Normalt slitage såsom mindre skav på dörrar, trösklar och karmar
Vissa lås samt brandvarnare behöver batteribyte
Inga fuktskador har noterats, varken via syn eller doft
Samtliga kontrollerade installationer och inventarier bedöms fungera, inklusive:
Mikro/ugn
Kokplattor
Radiatorer
Ventilation
Varmvattenberedare
Toalett och dusch
Teknisk beskrivning
Grundläggning
Tryckimpregnerat virke som placeras ovan mark och vägs in för att varje länga ska hamna i samma nivå.
Takkonstruktion
Låglutande takkonstruktion med svagt fall åt vardera håll i modulens längdriktning. Takytan består av papp.
Brandskydd
Bostadsmoduler: EI30
Övriga lokaler: EI15
Brandskydd framtaget av Brandkonsulten AB, genom brandingenjör August Mårtensson
Uppvärmning
Direktverkande el
Luftvärmepumpar
Ventilation
Självdrag
Viktig information
Auktionerna kan komma att avbrytas utan förvarning.
Underhandsförsäljning kan ske och auktionsförfarandet kan när som helst avslutas.
📩 Vid intresse av större volymer eller paketaffär, vänligen kontakta Stefan Baronowsky 📧 anbud@budi.se
Köparen ansvarar för att bodarna omhändertas på ett fackmannamässigt sätt.
Välkommen att ta del av en av de största bodförsäljningarna som genomförts i Sverige – exklusivt på Budi.se.
Sweden’s Largest Modular Housing Site – For Sale by Auction
A unique opportunity is now offered to acquire Sweden’s largest modular housing site through an auction process on Budi.se. The site comprises a very large number of fully equipped residential modules, suitable for temporary housing, staff accommodation, or other project-based needs.
About the site
A total of over 1,200 apartments, distributed across approximately 600 modules
Each apartment is furnished and equipped with a bed, kitchen/kitchenette, shower, and toilet
Each apartment measures approximately 14 m²
Shared facilities such as laundry rooms and kitchens are included
The modules were built between 2022–2023
The first phases offered for sale are rows K and L, each comprising:
40 modules
80 apartments per row
👉 This auction concerns: Modular housing site – Row L
Manufacturer & specifications
Manufacturer: Kubly
Model: R930, Vilan (Bo2)
Length: 9,000 mm
Width: 3,000 mm
Height: 3,000 mm
Weight: approx. 5,850 kg per module
Transport & handling
Transport by winch truck or crane truck
Four lifting eyes are located in the module roof for crane lifting
Lifting instructions: see image in the auction listing
Valuation statement
The overall condition is assessed as very good.
Normal wear such as minor scuffs on doors, thresholds, and frames
Some locks and smoke detectors require battery replacement
No moisture damage has been detected by sight or smell
All inspected installations and equipment appear to be functioning, including:
Microwave/oven
Cooktops
Radiators
Ventilation
Water heaters
Toilet and shower
Technical description
Foundation
Pressure-treated timber placed above ground and leveled to ensure each row of modules is on the same level.
Roof construction
Low-pitched roof construction with a slight fall in both directions along the length of the module. The roof surface is finished with roofing felt.
Fire protection
Residential modules: EI30
Other premises: EI15
Approved fire safety concept prepared by Brandkonsulten AB, fire engineer August Mårtensson
Heating
Direct electric heating
Air-source heat pumps
Ventilation
Natural (self-draft) ventilation
Important information
Auctions may be withdrawn at any time without prior notice.
Private treaty sales may occur, and the auction process may be terminated at any time.
📩 For interest in larger volumes or a package deal, please contact
Stefan Baronowsky
📧 anbud@budi.se
The buyer is responsible for ensuring that the modular units are handled and managed in a professional and workmanlike manner.
Welcome to take part in one of the largest modular housing sales ever conducted in Sweden – exclusively on Budi.se.
Liknande objekt på auktion just nu
Modulbaserad bostadsetablering i Skellefteå, Totalt 240 lägenheter / Modular Housing Facility in Skellefteå, 240 apartments
2 st bilinredningar med innehåll.
2 st. Väggavel String Furniture, Wall Sidepanel
2 st. Mässcontainer, inkl. inredning
2 st. Väggavel String Furniture, Wall Sidepanel
Tälthall 480m² med port och 2 kontor i kopplad byggbod
Auktionsinformation
Auktionsavslut
04 februari 2026 15:07Visning
Enligt ö.k. med hello@budi.seUtlämning
Enligt ö.k. med hello@budi.seAdress
Nöppelbergsvägen 13 SkellefteåFrakt
Ej möjligExport
AllowedSäljare
FöretagBudis auktionsvillkor
På budi.se säljs objekt på uppdrag av konkursbon, finansbolag och företag via auktion. Bud är alltid bindande och kan inte tas bort. Objekt säljs i befintligt skick och utan garanti. Vi saknar möjlighet att genomföra detaljerade tekniska undersökningar av de objekt som säljs.
Inför köp, läs igenom objektsbeskrivningen, jämför utropspris mot liknande varor, undersök objekt vid utannonserad visningstid samt vid avhämtning. Vid betydande avvikelse från objektsbeskrivning, kontakta Budi så snart som möjligt. Köparen ansvarar för att planera och genomföra nedmontering, lastning, transport och bortforsling.
Läs gärna våra fullständiga villkor för mer information:
Villkor / Villkor för företag
Vanliga frågor och svar
Manuella bud (ibland kallat "direktbud" eller helt enkelt "bud") innebär att du anger ett exakt belopp som omedelbart visas som det ledande budet. Det finns ingen automatisk budgivning och inga dolda maxbelopp.
Manuella bud är tillgängliga på objekt med högre budstege.
Hur det fungerar
- Du väljer manuellt bud i budgivningsvyn
- Du anger beloppet du vill bjuda (t.ex. 2 000 kr)
- Om budet är tillräckligt högt blir det direkt det synliga ledande budet
- Det finns ingen dold "budbevakning" - ditt bud är precis vad du ser
Med manuella bud har du full kontroll över exakt vilken nivå du bjuder på. Om någon annan lägger ett högre bud måste du själv aktivt höja ditt bud - systemet gör det inte åt dig.
Kan jag sänka mitt manuella bud?
Nej. Ett manuellt bud kan inte sänkas. Eftersom det synliga budet och ditt maxbelopp alltid är samma, finns det inget utrymme att sänka. Du kan bara höja ditt bud.
Kan jag ändra till maxbud istället?
Ja. Du kan när som helst byta från manuellt bud till maxbud genom att lägga ett nytt bud som är högre än ditt nuvarande.
Ser andra mitt manuella bud?
Ja - det är hela poängen. Ditt manuella bud visas direkt som det ledande budet. Det finns inga dolda belopp.
Vad händer om någon har maxbud som är högre än mitt?
Om du lägger ett manuellt bud som är lägre än någon annans dolda maxbud kommer budmotorn automatiskt att höja deras bud enligt budsteget. De behåller ledningen och ditt bud läggs in i budhistoriken.
Vad händer om mitt manuella bud är högre än deras maxbud?
Då vinner du budgivningen och tar över ledningen. Ditt exakta belopp blir det nya synliga budet.
Exempel på hur manuella bud fungerar
Exempel 1: Du vinner med manuellt bud
Det ledande budet är 15 000 kr. Du lägger ett manuellt bud på 25 000 kr.
Resultat: Det synliga budet blir 25 000 kr och du leder auktionen.
Exempel 2: Du förlorar mot ett maxbud
Användare A har maxbud på 30 000 kr. Det synliga budet är 15 000 kr.
Du lägger ett manuellt bud på 20 000 kr.
Resultat: A:s automatiska budgivning aktiveras och det synliga budet blir 20 500 kr. A leder fortfarande (deras maxbud på 30 000 kr är högre än ditt bud).
Exempel 3: Du slår ut ett maxbud
Användare A har maxbud på 20 000 kr. Det synliga budet är 15 000 kr.
Du lägger ett manuellt bud på 25 000 kr.
Resultat: A:s automatiska budgivning höjer till deras max på 20 000 kr, men ditt manuella bud på 25 000 kr är högre. Du tar över ledningen med synligt bud 25 000 kr.
Skillnaden mot maxbud
| Egenskap | Maxbud | Manuellt bud |
|---|---|---|
| Synligt bud | Stegar upp automatiskt | Exakt det du anger |
| Automatisk budgivning | Ja | Nej |
| Dolt maxbelopp | Ja | Nej (max = synligt) |
| Kan sänkas | Ja (ned till synligt bud) | Nej |
En serviceavgift tillkommer på alla produkter som säljs via Budi. Avgiften läggs ovanpå det vinnande budet, och blir därmed en del av det totala belopp du som köpare betalar.
Varför finns serviceavgiften?
Serviceavgiften täcker våra kostnader för hantering, administration och den service vi erbjuder i samband med försäljningen. På så sätt kan vi säkerställa en trygg och smidig köpupplevelse.
Hur beräknas serviceavgiften?
Serviceavgiften sätts i relation till marknadsvärdet.
Hos Budi kan serviceavgiften beräknas på två olika sätt beroende på objektet - fast eller dynamisk- Det framgår på objektssidan vad som gäller för ett visst objekt.
Fast serviceavgift: Vissa objekt har en fast serviceavgift som är densamma oavsett det vinnande budet. Denna fasta summa påverkas inte av själva budgivningen.
Dynamisk serviceavgift: För vissa objekt beräknas serviceavgiften som en procent av det vinnande budet, med ett minimibelopp. Det innebär att ju högre det vinnande budet blir, desto högre blir serviceavgiften - men den kommer aldrig att bli lägre än minimibeloppet.
Ju högre värde ett objekt har, desto större blir både det juridiska och ekonomiska ansvar som följer med försäljningen.
Inom auktions- och mäklarbranschen är det praxis att avgifter bestäms procentuellt eller som en fast summa baserat på försäljningspris eller marknadsvärde. Högre värderad egendom belastas med en något högre avgift, vilket motsvarar den ökade komplexiteten, risken och det ansvar som hanteringen av mer värdefulla objekt medför.
Tillkommer moms på serviceavgiften?
Ja, 25 % moms läggs alltid på serviceavgiften.
När och var kan jag se serviceavgiften?
Serviceavgiften visas när du är inloggad på vår hemsida. Vi visar alltid avgiften tydligt innan du lägger ditt bud - så att du vet exakt vad totalpriset blir.
Exempel
Exempel 1
Scenario: Du vinner en auktion med ett bud på 10 00 SEK
- Serviceavgift i procent: 16%
- Minsta serviceavgift: 195 kr
Beräkning:
- Procentbaserat belopp: 10 00 kr × 16% = 160 SEK
- Minsta belopp: 195 kr
- Eftersom 160 kr < 195 kr, gäller minimibeloppet
- Din serviceavgift: 195 kr
I detta fall, även om 16% av ditt bud bara skulle bli 160 SEK, betalar du minimibeloppet på 195 kr.
Exempel 2
Scenario: Du vinner en auktion med ett bud på 10 000 SEK
- Serviceavgift i procent: 16%
- Minsta serviceavgift: 195 SEK
Beräkning:
- Procentbaserat belopp: 10 000 SEK × 16% = 1 600 kr
- Minsta belopp: 195 kr
- Eftersom 1 600 kr > 195 kr, gäller det procentbaserade beloppet
- Din serviceavgift: 1 600 kr
I detta fall resulterar den procentbaserade beräkningen i en högre avgift än minimibeloppet, så du betalar 1 600 kr.
Reservationspriset sätts av uppdragsgivaren (säljaren) och är det lägsta belopp som säljaren accepterar för produkten. Syftet är att säkerställa att varan inte säljs under ett i förväg bestämt värde.
Om du vinner en budgivning där reservationspriset inte har uppnåtts, kommer vi att kontakta dig för att höra om du är intresserad av att mötas på en högre nivå. Vi kan då föra en dialog med säljaren för din räkning för att se om det går att komma överens om ett pris som båda parter accepterar.
Har alla objekt ett reservationspris?
Nej, på Budi har de flesta objekt inget reservationspris. Det betyder att budgivningen är bindande från första budet och att objektet säljs till högsta bud när auktionen stänger. Om ett objekt har reservationspris framgår det i auktionsinformationen och du ser också om ditt bud har uppnått det eller inte.
Vad händer om reservationspriset inte uppnås?
Vi kontaktar dig som budgivare för att höra om du vill diskutera ett högre belopp, och för en dialog med säljaren för att se om en överenskommelse är möjlig.
Kan jag fortfarande köpa om jag vinner under reservationspriset?
Inte direkt. Ditt bud är inte automatiskt godkänt av säljaren, men vi försöker hitta en lösning om du är intresserad.
Ser jag reservationspriset i förväg?
Nej, reservationspriset är dolt under budgivningen. Det enda du ser är om ditt bud har uppnått det eller inte.
Varför finns reservationspris?
För att ge säljaren trygghet i att inte behöva sälja objektet under ett för lågt pris.
Alla bud på Budi är maxbud. Det innebär att du anger det högsta belopp du är beredd att betala för ett objekt.
Vår budmotor sköter sedan budgivningen åt dig automatiskt. Den höjer ditt bud i enlighet med de fördefinierade budstegen – alltid med minsta möjliga höjning – upp till ditt maxbud. På så sätt behöver du inte själv bevaka auktionen varje gång någon annan bjuder.
Bud som lagts automatiskt av budmotorn markeras med i historiken.
Maxbud kallas ibland för "autobud" eller "automatiskt bud" hos andra auktionsplattformar. Det är samma koncept – du anger ett maxbelopp och systemet sköter budgivningen åt dig.
Kan jag ändra mitt maxbud?
För att höja maxbudet: Du kan när som helst höja ditt maxbud genom att skriva in ett nytt belopp. Systemet uppdaterar det direkt.
Sänka maxbudet: Du kan sänka ditt maxbud, men bara så länge ditt nya maxbud fortfarande ligger över det aktuella högsta budet i auktionen.
Måste jag alltid lägga bud manuellt?
Nej. När du har lagt ett maxbud sköter systemet automatiskt dina höjningar enligt budstegen, upp till ditt maxbelopp.
Ser andra mitt maxbud?
Nej. Ditt maxbud är dolt för övriga budgivare. De ser bara det aktuella ledande budet.
Vad händer om två lägger samma maxbud?
Den som la sitt maxbud först får fördelen och ligger kvar som ledande budgivare.
Kan jag ångra ett maxbud?
Du kan inte ta bort ett maxbud helt, men du kan sänka det – så länge det fortfarande är högre än det aktuella högsta budet.
Exempel på hur maxbud fungerar
Du lägger ett maxbud på 1 000 kr. Det högsta befintliga budet är 700 kr.
Systemet höjer då automatiskt till nästa budsteg, t.ex. 750 kr.
Om någon annan bjuder 800 kr, höjer systemet dig direkt till 850 kr.
Detta fortsätter tills någon bjuder över ditt maxbud på 1 000 kr – eller tills du vinner auktionen på en lägre nivå.
Budmotorn är skapad för att göra budgivningen enklare för dig som budgivare.
På Budi finns två sätt att lägga bud:
- Maxbud - Systemet budar automatiskt åt dig upp till din maxnivå. Tillgängligt på alla objekt.
- Manuellt bud - Ditt bud går direkt till det exakta beloppet. Tillgängligt på utvalda objekt med högre budsteg.
Bud som lagts automatiskt av budmotorn markeras med i historiken.
Maxbud - automatisk budgivning
När du lägger ett maxbud sköter budmotorn budgivningen åt dig automatiskt:
- Du anger ditt maxbud (t.ex. 20 000 kr)
- Systemet lägger bud åt dig i steg (t.ex. +500 kr) upp till ditt max
- Det synliga budet visar bara vad som behövs för att leda budgivningen
- Om någon annan bjuder under ditt max höjs det synliga budet automatiskt
Har ingen lagt ett högre motbud stannar budgivningen där. På så sätt ser systemet till att du aldrig betalar mer än nödvändigt.
Manuellt bud - full kontroll
Med manuellt bud anger du ett exakt belopp som visas direkt som det ledande budet. Budmotorn aktiveras inte - du måste själv bevaka auktionen och höja ditt bud om någon bjuder över.
Manuella bud är tillgängliga på objekt där budsteget är minst 500 kr.
Scenarion
Scenario 1: Du har högst maxbud
Budgivare 1 har lagt ett maxbud på 15 000 kr. Budgivare 2 lägger ett maxbud på 20 000 kr.
→ Budgivare 2 leder på 15 500 kr (nästa budsteg över 15 000 kr).
Scenario 2: Någon annan har högre maxbud
Budgivare 1 har lagt ett maxbud på 25 000 kr. Budgivare 2 lägger ett maxbud på 20 000 kr.
→ Budgivare 1 leder på 20 500 kr (nästa budsteg över 20 000 kr).
Scenario 3: Samma maxbud
Budgivare 1 och budgivare 2 har båda lagt 30 000 kr som maxbud.
→ Den som la sitt maxbud först ligger kvar som ledande budgivare.
Scenario 4: Manuellt bud mot maxbud
Budgivare 1 har ett maxbud på 25 000 kr (synligt bud: 15 000 kr). Budgivare 2 lägger ett manuellt bud på 20 000 kr.
→ Budmotorn höjer automatiskt budgivare 1:s bud till 20 500 kr. Budgivare 1 leder fortfarande.
Scenario 5: Manuellt bud slår ut maxbud
Budgivare 1 har ett maxbud på 20 000 kr (synligt bud: 15 000 kr). Budgivare 2 lägger ett manuellt bud på 25 000 kr.
→ Budgivare 2 leder med exakt 25 000 kr. Budmotorn kunde inte hjälpa budgivare 1 eftersom deras maxbud inte räckte.
Auktionsförlängning
För att alla ska ha en rättvis chans förlängs auktionen med 3 minuter efter varje nytt bud som läggs under de sista tre minuterna av auktionen. Auktionens avslut förlängs alltså vid varje nytt bud på slutet, tills ingen bjuder mer.
Vanliga frågor
Kan jag alltid välja mellan maxbud och manuellt bud?
Maxbud är alltid tillgängligt. Manuella bud är tillgängliga på objekt där budsteget är minst 500 kr.
Aktiveras budmotorn för manuella bud?
Nej. Budmotorn aktiveras bara för maxbud. Vid manuella bud måste du själv bevaka auktionen och höja ditt bud.
Kan jag se andras maxbud?
Nej. Maxbud är dolda för andra budgivare. Du ser bara det aktuella ledande budet.
Hur vet jag om ett bud lagts automatiskt?
Bud som lagts automatiskt av budmotorn markeras med i budhistoriken.
Alla bud på Budi är bindande. Det innebär att när du lägger ett bud förbinder du dig att fullfölja köpet om du vinner auktionen. För mer information om vad detta innebär kan du läsa våra auktionsvillkor.
För vissa objekt finns möjlighet till frakt. Om frakt är tillgängligt framgår det alltid i objektets auktionsbeskrivning.
Frakt bokas alltid i samband med betalningen. Då inkluderas fraktkostnaden direkt i din betalning.
För övriga objekt behöver du själv hämta ut varan, eller anlita en extern tjänst som exempelvis Tiptapp eller Mooova. Var noga med att ge hämtaren både ditt kundnummer och ditt kvitto, eftersom dessa krävs vid utlämningen.
Om du skickar ett ombud för att hämta åt dig måste även ombudet kunna visa upp ditt kvitto.
Har du frågor kring ett specifikt objekt är det alltid bäst att höra av dig innan auktionen avslutas, så att vi kan bekräfta möjligheten till frakt och eventuella kostnader.
Hur bokar jag frakt?
Frakten bokas alltid i samband med betalningen, om objektet kan skickas.
Kan någon annan hämta mitt objekt?
Ja. Ombudet måste visa upp ditt kvitto vid utlämningen.
Kan jag använda en extern tjänst som Tiptapp eller Mooova?
Ja. Se till att den som hämtar har ditt kundnummer och kvitto för att kunna hämta ut objektet.
Är frakt alltid möjlig?
Nej, fraktmöjligheten varierar mellan olika objekt. Kontrollera alltid objektets auktionsbeskrivning.
Avslutad
Avslutad: 04 februari 2026 15:07
Vinnande bud
Kontakta Budi
Endast företag får lägga bud på detta objekt
Du måste bekräfta att du har uppfattat auktionens utlämningstider och plats innan du kan lägga ditt bud.
Kom ihåg att även om frakt är ej möjligt så har du möjlighet att hämta ut objektet själv, skicka ett ombud eller använda externa tjänster som t.ex. Tiptapp under den aktuella utlämningstiden.
Mer från samma kategori
Stålstomme för hallbyggnad med 26 enheter, projekterad SCALA, 24x78 m, ca 1872m²
Bandgrävmaskin Hitachi ZX135US-6 -2018 | Engcon | Makin' 3D
Tälthall 480m² med port och 2 kontor i kopplad byggbod
Stålhall, Steelconstruction By Sweden, ca 745 m², 37,8x19,7 m
Bomlift JLG 460SJ 2003 | 4 144 h | Ny servad
Skogsvagn med kran Palms P655 | 2004
Everun EREL10 4x4 Eldriven lastmaskin 2023
Dumpervagn Multiva TRM13 | 13 ton | 2017
Släntklippare Agrimaster FZL250 Super | 2020
Spannmålsvagn Gisebo
Vikplog Sami VM-2800 3P | 2017
Ismaskin Olympia Icebear Electric -2015
12 av 154 st